Nos compagnes ne sont pas des pages vides ; il est toujours possible d’en tirer les fils pour guider la conception d’un bâtiment. Un chemin, une vue lointaine, un arbre, une maison voisine. Tout est déjà-là avec l’élégance de ne pas nous exploser au visage.
Nous intervenons là dans des lieux subtils et discrets, loin des montagnes et des mers qui nous crachent au visage leurs beautés évidentes, presque vulgaires… Que la campagne est belle !
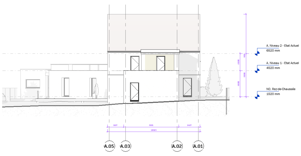
Tâche délicate que d’imposer une masse de près de 300 m² en pensant à l’impact sur l’environnement et le paysage. Horizontalité et discrétion sera le maître mot pour un bonheur contemporain.
- Situation : Joiselle (51)
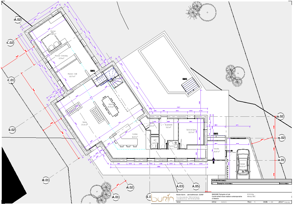
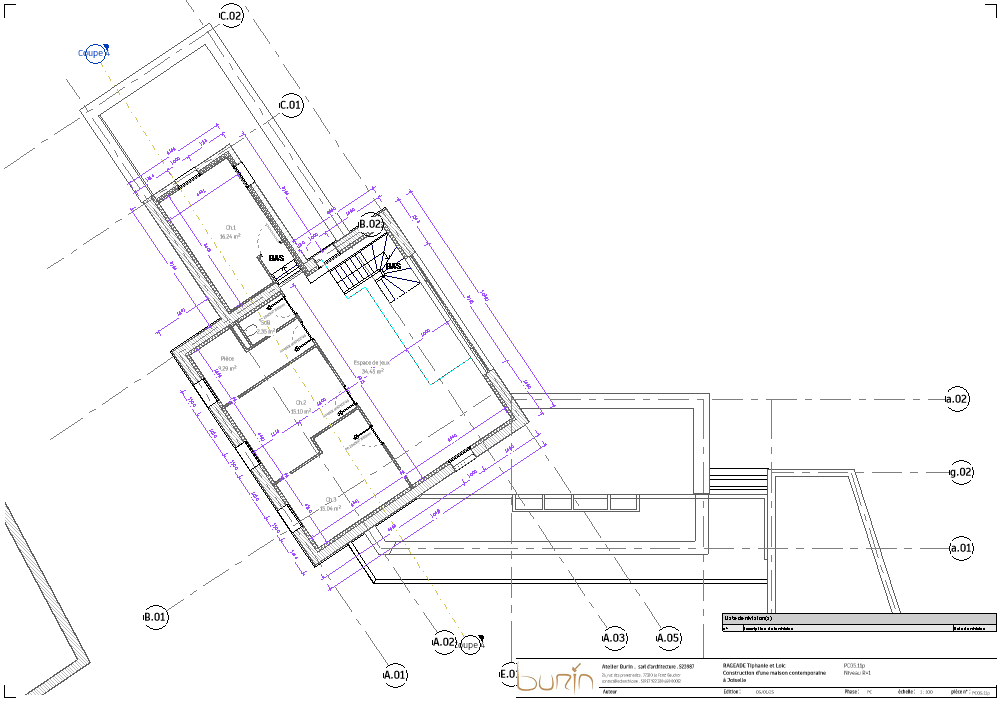
- Programme : Construction d’une maison contemporaine sur parcelle libre.
- Mission : Mission partielle étendue
- Etat : APD
- SHON : 300.00 m²
- Budget : 750 000.00 € TTC

























Laisser un commentaire