Discrète petite maisonnette longeant l’Oreuse ; Perdue dans un coin de Bourgogne plein de charme. D’une petite intention nait une belle ambition… Rénover… Un mot doux rempli de potentiels sur ce tas de pierres dorées et qui rend le cœur tendre comme un calcaire prêt pour la taille. Instant propice à la bonne mine, passant de l’ancre à la couleur dans un geste ancien et vif balayant les souris pour raviver le bonheur des belles choses faites à la main.
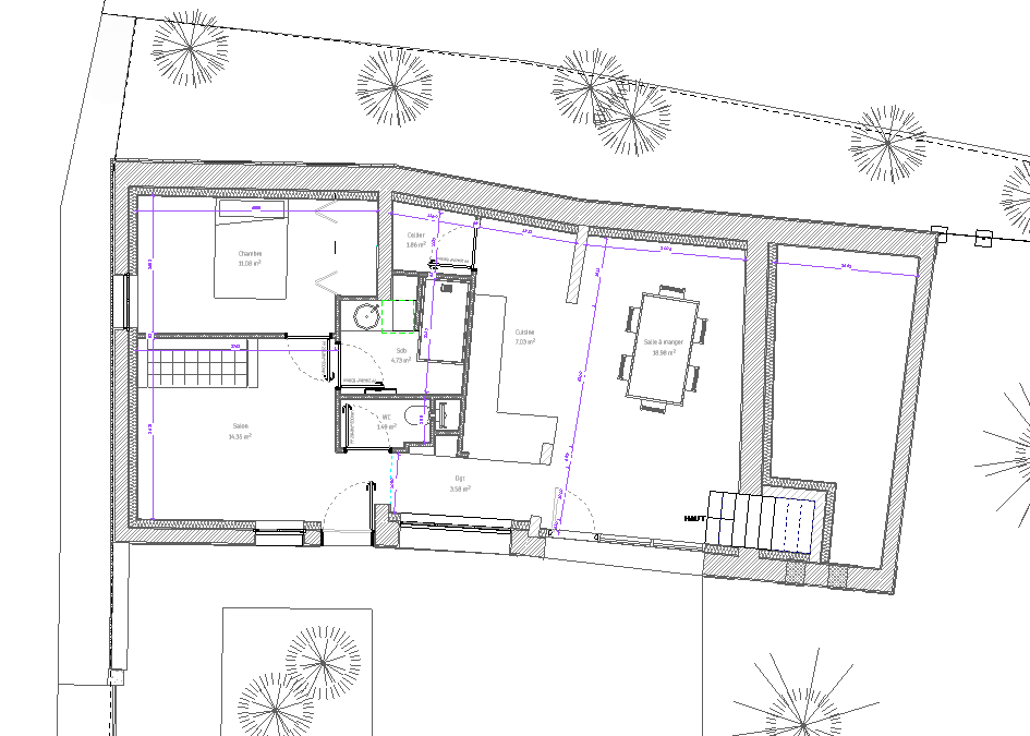
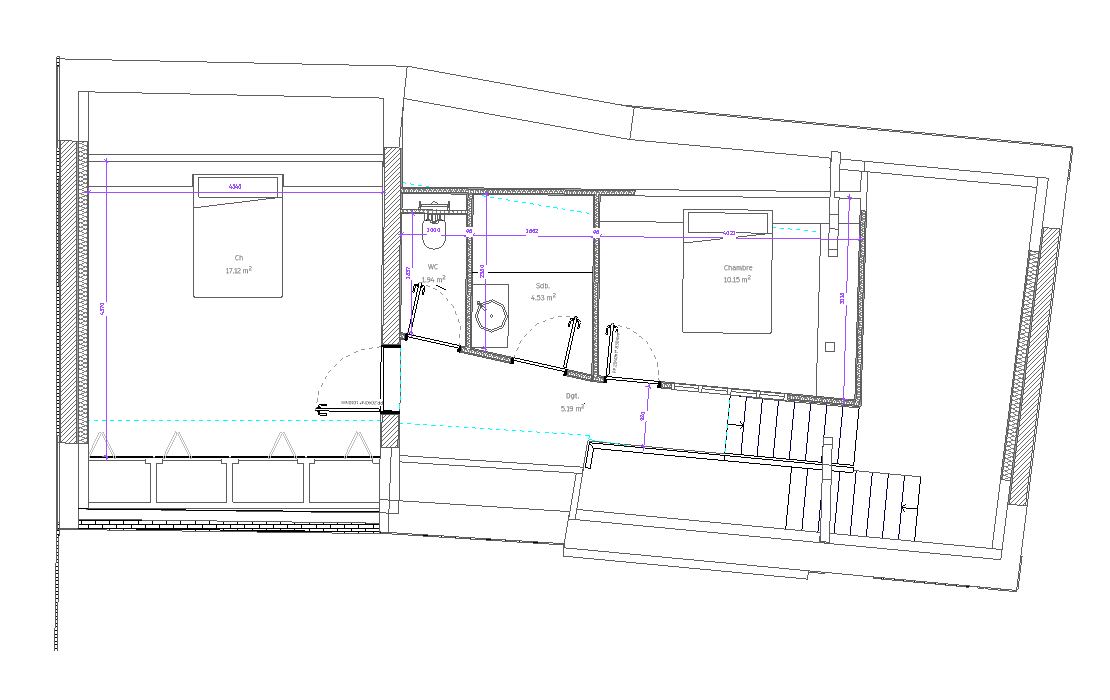
- Situation : La Chapelle-sur-Oreuse (89)
- Programme : Réhabilitation d’une maison Bourguignonne
- Mission : Mission partielle étendue
- Etat : PC et étude thermique préliminaire
- SHON : 150.00 m²
- Budget : 200 000.00 € TTC











Laisser un commentaire