Un espace de respiration après une bonne journée de travail dans la vigne, voilà un dispositif plus que nécessaire pour le bien de nos papilles.
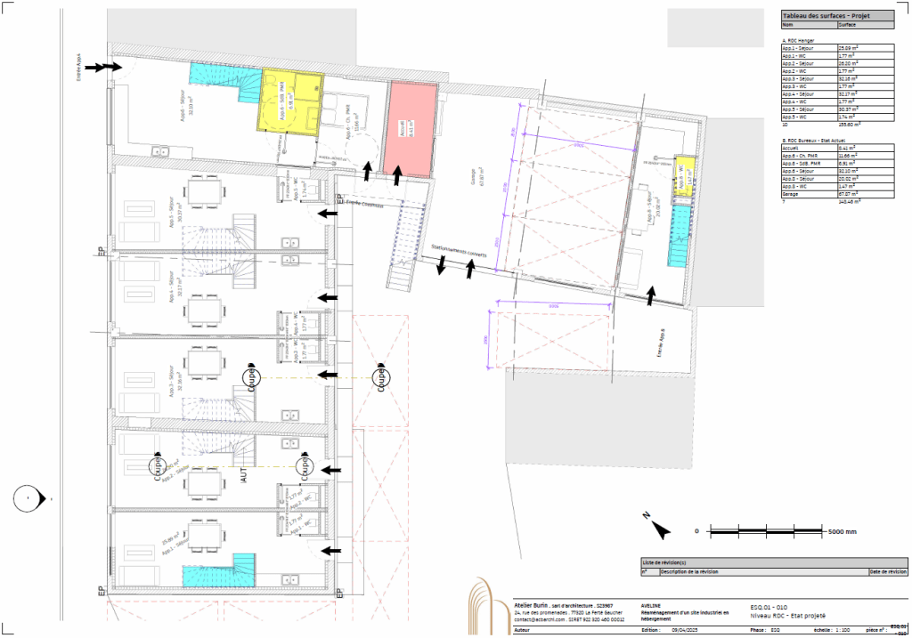
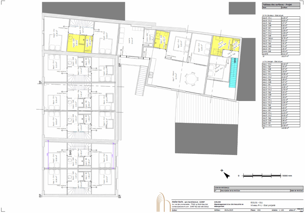
A deux pas des premiers domaines de Champagne du Sézannais, Mini bulles est un programme de sept logements individuels au service des saisonniers vendangeurs.
- Situation : Fère-Champenoise (51)
- Programme : Création d’un complexe de 7 logements pour les travailleurs Champenois
- Mission : Mission partielle étendue
- Etat : PC et étude thermique préliminaire
- SHON : 800.00 m²
- Budget : 750 000.00 € TTC







Laisser un commentaire