N’est content pour rien qui veut, il faut une bonne dose de convictions pour défendre ça au beau milieu de la convention la plus conventionnelle.
Une radicalité heureuse qui tranche avec la pauvreté pavillonnaire environnante, donnant la part belle à l’exposition et les apports bioclimatiques. Rien ici est gadget, la forme offrant la performance et l’expression de l’exception au cœur de la globalisation.
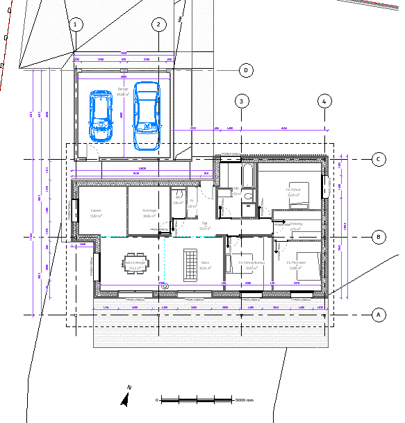
- MOE : Atelier Burin
- Situation : Saint Hilliers (77)
- Programme : Construction d’une maison individuelle dans une approche bio-climatique
- Mission : Conception et PC
- Etat : PC
- SHON : 160.00 m²
- Budget : 320 000.00 € TTC



- Projet de maison passive avec volonté de labellisation « Passiv Haus ». Structure bois sur pieux vissés.
- Toiture papillon avec chéneau central.
- Façade nord radicale dans une épure associant matériaux bio-sourcés et éléments techniques.
- Façade sud plus ouverte, débords de toiture pour limiter les effets de surchauffe.
- Absence de système de chauffage pour une gestion passive de la maison.




Laisser un commentaire