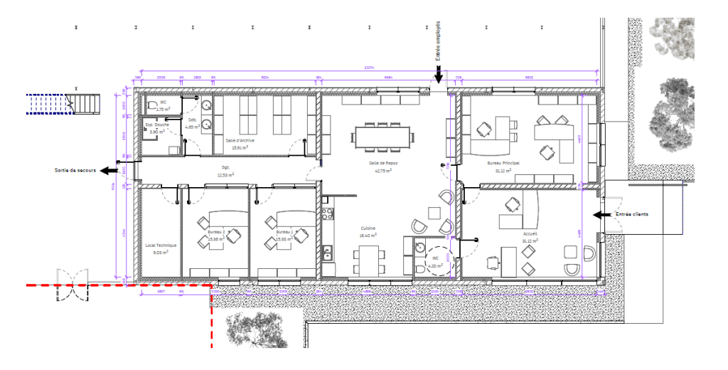
Bâtiment industriel abandonné réhabilité et transformé en siège social d’entreprise.
- MOA : Technique Assistance
- MOE : Atelier Burin
- Situation : Pleurs (51)
- Programme : Agrandissement du siège de l’entreprise au sien d’un ensemble industriel existant
- SHON : 2 000.00 m²
- Mission : Conception et PC
- Etat : En instruction
- Budget : 400 000.00 € TTC


Intégration d’un logique bio-climatique dans un contexte de zone d’activité.



Laisser un commentaire